Renovations are well underway at the new old house. It’s amazing to see it start to come together after playing around with it on paper and on the computer for so many weeks.
My friend Christy keeps pestering me for before and after photos, which don’t exist because we are very much still in progress. (Also, because I don’t have a wide angle lens and cannot figure out how to take interior shots.) But I figured I’d let you guys know what we’re planning to do to turn this historic house into our big family dream house.
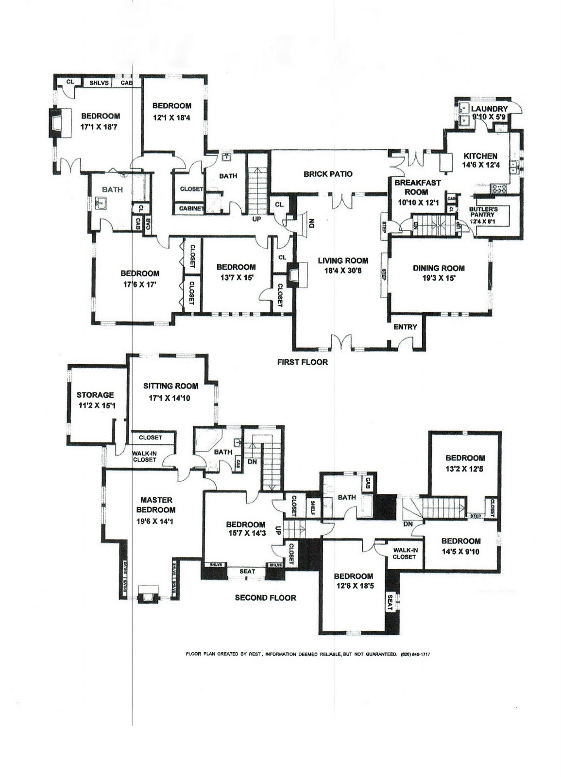
Here’s what the layout of the house looked like when we bought it:
and, presumably, when it was built in 1920, for a family of THREE. (And their servants.) It had ten bedrooms if you count the chapel (which you can because it has a closet) and the sitting room.
We don’t need ten bedrooms. We don’t want ten bedrooms. We have four
bedrooms now, and many nights we’ll have one open, because the kids like
to sleep in a big pile. Like puppies.
So, most of the bedrooms are getting repurposed.
But, I’m getting ahead of myself. Starting on the first floor, here’s what we are planning . . .
The kitchen is getting completely redone because it wasn’t functional:
Actually the one thing in the remodel plans that I was a little bummed about was having to get rid of the butler’s pantry. It was really cool.
But the original kitchen was intended for servants only, and was really small. There just wasn’t room for the appliances we wanted without absorbing the butler’s pantry and creating one big space. But we saved all the original glass and hardware, and the new cabinets are going to be built to look just like the old ones, so part of it will live on.
We’ll have a full-sized refrigerator-only and a full-size freezer-only, but not next to each other, because that just looked too massive. We’re also going to have two dishwashers, because even running ours at least twice a day, we still end up having to hand-wash after dinner most nights.
For the floors in the kitchen and laundry/mudroom we’re planning to put in linoleum. I’m really excited about it because it’s a way to get a fun, funky, retro-looking floor, that’s also a natural material. Seriously. It’s made of linseed and jute. Who knew? Those guys need better PR.
The downstairs bedrooms are going to become . . .
1. The TV room. I didn’t really want a separate “formal” living room. We don’t have one now. But the four walls of the living room are taken up with: french doors, the dining room, french doors, and a big fireplace. So, there really wasn’t room for a TV. The plan is to remove a wall of the first bedroom to open the room to the stairs and the bathroom, and put our comfy couch and the TV in there. I have some fancy uncomfortable couches picked out for the living room, but I still have to talk the husband into them.
2. The playroom. All the toys in one place only. I hope.
3. The schoolroom. It’s got amazing built-ins, french doors to the side yard, a working fireplace, and a cool old light fixture. If I didn’t already homeschool, I would start just so I could do it in this room.
4. The guest room. Mostly for my parents.
Upstairs we’re doing even more work.
I love having a W I D E family, but with so many different ages in the house, we almost always have someone asleep. Between the toddlers and the teenager, we could almost hot rack them, their sleeping schedules are so different.
But I’m not the kind of person who wakes up sleeping babies. Pretty much ever. So if you didn’t get your shoes out of there before the baby went to sleep, you’re out of luck.
That shouldn’t be a problem in the new house.
We are creating three master suites: one for the boys, one for the girls, and one for the grownups. The boys and the girls will each have a sleeping room with six beds and nothing else, a bathroom, and a dressing room with individual closets and a washer/dryer. The plan is: Clothes don’t come out of that room unless they are on your person.
The original floorplan had walk-through bedrooms, which doesn’t work for us. The bedroom at the top of the stairs is getting split into the girls’ dressing room and a nursery.
The girls will sleep in the original master bedroom. And we’ve moved the girls’ bathroom to make it ensuite, and to create a hallway to the boys’ rooms.
The girls’ bathroom will have a chandelier, at their request, a shower, and a tub big enough for three little kids and/or an accidental home birth. Because you just never know.
The original sitting room will be the boys’ sleeping room. The old master bedroom closet is becoming the boys’ dressing room.
A weird old storage room (formerly with cable!)
is becoming the boys’ bathroom with toilet, urinal, three sinks, and a shower with a shower head at either end, so two boys can use it at once.
In the new master bedroom, we took OUT the hallway to make the bathroom ensuite, and we also removed the ceiling, because it just so happens to be underneath the peak of the roof.
The husband and I really did pick the smallest room upstairs, because we figured the kids’ needed more room. But now I’m pretty sure this is going to be the coolest room in the house.
The last two rooms up there will be an office and the chapel. They are both also accessible by a stairway in the kitchen.
So . . . that’s the plan.
I would give you more progress shots, but they pretty much all look like this:
I’ve been doing a lot of important home renovation research on Netflix. And, therefore, in addition to my OWN renovation update, I can provide you with the following helpful guide.
1. The Property Brothers:
Why are they so smug? Why do they delight so in dashing people’s dreams with their “psych, you can’t have it” first home? Does no one who comes on the show WATCH the show? Really? WHY do they all fall for it?
2. Dear Genevieve:
Creates cool, functional spaces. Also creates language. Won’t stop talking about things like the “verticality” of items, and whether particular throw pillows can be “friends” with one another.
3. Flip or Flop:
Always flip. Never flop. So awkward it makes me think I would never want to be on a reality show. Seriously just ALL the awkward talking to the camera and obviously fake phone calls and even faker drama. Every single episode (of the five I watched): 1. We’re going to try to buy this house. Hey we bought it! 2. Oh, NO. Everything is a disaster. This is a big problem. We are sure to be ruined. 3. Never mind, we made forty THOUSAND dollars.
4. The Vanilla Ice Project:
Exists.
5. Fixer-Upper:
Love this show. Love them. Love their kids. Love the houses. Love Waco. Makes me want to have a reality show so we could be HALF as cute as they are. No smugness, no fake drama, no weirding of language. Just what appears to be a very genuine talent and love of homes and the people who live in them. And shiplap.
And I have shiplap!
Okay, that’s all for now.
I’ve been maxed out with home decisions and supervisions, and all that Netflix-watching, and I still have some other projects on my to do list. Fortunately, baby Mary Jane just sleep-trained like a little champ, so I am looking forward to being able to accomplish things with both hands AND bending, which should be nice. But I’ll be around. ;o)
See ya in the comments.

















That is amazing! What a great use of all of the space. Thanks for sharing.
Sounds fabulous! I look forward to reading more. Hope y'all are doing well.
Haha! 3. Flip or Flop: – "nevermind, we made 40 thousand dollars!" – I really don't like the show, and I don't think the mom is being a good example to her little girl, but gosh, it is addicting to see the 'ruined house' and then all the money they make. Fake drama, so true!
Shiplap! Hooray! Lol…I love it, love old houses. We are moving this year and my husband is always like,"here is a functional sensible ranch house" and I'm like,"here is an 80 year old money trap, I'm in love!"
I still can't believe I talked my very sensible husband into our 100 year old money trap!
Have you seen the movie Money Trap?! I love it!
I haven't. I'll have to look for it. Is it appropriate for the whole family?
The Money Pit! Right? Love that one. It's been so long since I've seen it, I can't remember if there's anything inappropriate. Shelly Long and a very young Tom Hanks. Here's what Common Sense has to say about it, "Parents need to know that this comedy, although PG, has several mature themes and conversations. The couple played by Tom Hanks and Shelley Long fool around in bed — with their construction crew looking on in one case. They kiss many times throughout the movie and have conversations about sex, drinking and ending their relationship. Some of the comments may go over young kids' heads, however. The humor consists of Hanks (and in a few cases Long) getting hurt in a variety of elaborate ways during their hellish home renovation. If made today, this slapstick comedy would be rated PG-13."
The new floor plan is perfection for a big family. And I have a gut feeling that Chip and JoJo and HGTV would love to do a special about your reno. How can we petition that??
And my hubby won't watch those shows with me any more until one says "we are creating a closed-concept in this house"!
"Open Concept" cracks me up…. seriously, who wants to see their entire messy house at once? I love being able to close doors and forget about things for a little bit.
Oh, I so agree! They always look so lovely in the big reveal, but truly…. I DON'T want to have my often messy kitchen on display from the front door.
I don't want to hear the noise of one room in another.
I feel the same way! We rented an open concept house for two years and I hated seeing all the things from the front door.
That's hilarious, and a really good point about not seeing the dirty dishes when you walk in the front door! But how weird are those seventies houses on Fixer Upper, where you open the front door and it's just a WALL three feet in front of you. So odd.
This. Is. Amazing. I studied those blueprints like I'm your architect and I'm in love. You really thought about what you need in a house and designed it and that's so great. A wager dryer in each closet! So many sinks! Two shower heads! My only disappointment is that it's not labeled "baby storage"
Washer. Not wager. Although I'd bet you could make 40k on a house you flipped too.
This was an earlier version of the plans, not the ones we submitted to the city for permits. I'll have to look for those and maybe update the post. It IS pretty hilarious.
Looks and sounds AWESOME. And we think the same things about Property Brothers and Fixer Upper! At least once a week I tell my husband I want to move to Waco.
Oh yeah and same thoughts on Flip or Flop. Always a disaster and yet so much profit!
This is an absolutely beautifulhome. You are truly blessed to be able to afford this in So Cal!But aren't you worried taking away bedrooms will decrease the home's value should you decide to resell it later?I would think the older kids might need a bit more privacy from their younger siblings down the road. I know my older daughter would be a tad upset(understatement) if I were to set up a dormitory situation like this. Especially if there was an existing room that I removed on purpose.
It's actually still a nine or ten bedroom home. It's not like we're removing bedrooms, it's just how our family is using them. Plus we don't intend to sell it. Ever. đ
We don't have a right to privacy in our house. Life and liberty and pursuit of happiness, sure, but not privacy. And never being upset about where you get to live in a mansion. Never, ever that.
I wonder why you are so opposed to children, especially as they turn into teenagers, having some privacy? Their bodies and minds are changing and just because they want to all sleep together now ,doesn't mean they will want to continue as they get older. At least you will have the space if that becomes an issue, which I truly believe will happen.
I wouldn't worry about this, Kendra. Obviously, if something isn't working for a child or teen, you can work on it or change it. But a culture of togetherness is a great gift!
I don't know, I personally don't have my very own bedroom in my house…I think very few adults, if they are married, do! Why should I think my kids have a right to one? Finding a space to be alone for a bit of time can be important sometimes, yes. Somehow I think in this mansion there will not be problems with that when the need arises.
Yes! We are fortunate to have the space to make adjustments if necessary. But we are currently focused on providing private storage of individual possessions for each kid and on having individual workspaces. Private sleeping quarters seems like an unnecessary luxury in a home with this many people. It's not good for man to be alone, right? đ
"Baby Storage" will eventually turn into "Teenager Solitary", so they'll have a place to stash pouty teenagers who can't appreciate the gift they've been given in this house and family and insist on needing special "alone time". đ
I don't think that wanting to have some time to oneself makes someone pouty. Having to shower and sleep with my younger brothers or sisters….that would make me pouty. I would willingly take the tiny space. And what about when the kids return in later life with their husbands/wives? Will they all have to bunk together? I see some further renovations down the line, whether or not they still have little children living at home.
I think that our current culture places too much emphasis on private spaces for individuals. It bothers me. Human beings are communal creatures. When you are sleeping, you do not need to be alone. I slept with my four sisters. We talked in our sleep, got up to go the bathroom, got up early for work, got dressed, all in the same room for years until I married and moved out. When we wanted a little time alone, we either went outdoors (I loved solitary walks) or just spent time in our room when it happened to be empty. It was not a problem and I have not even considered regretting the situation. As a married woman, I have always shared a bedroom with my husband and at least one, at times three, small children. It's just life. We all live together, really together.
Yes, Emily. I agree. I am a person who likes to be alone, but I don't think it improves me. I've lived alone and I've lived with other people, and I am a much better human being when I don't get to cater to every one of my own whims and desires. I think there is a reason that God calls so few people to the vocation of hermit. Almost all of us need other people around us to give us opportunities for service and mortification.
I know my kids. I only have one teenager so far and he absolutely thinks he wants his own room, but it wouldn't be good for him. None of the other kids would take their own room if I offered it to them, but I don't think it would be good for them either.
They will, however, each have all the space they need.
And, as I mentioned before, none of the rooms is going away. The rooms will all still have four walls and a closet, even. If I'm lucky enough to have many grandchildren, there will be plenty of room for all. That's certainly what we are hoping for.
My oldest is 19, and she has 7yo and 3yo sisters. She is away at college this year, but they have always shared a room…my two boys share another, my husband and I have one of course, and the fourth bedroom is a school/play room. It has been fine. đ Of *course* she would love her own room. It is not realistic for us, and if I were going to design a house, I wouldn't have it any other way anyway. Teenagers are reclusive enough. Some privacy is fine, but they need to be encouraged to engage more, not hide from their family more. We gave my daughter some privacy by buying a loft bed. It has a double bed on top, and a desk and chair and shelves underneath, and some curtains we added that she can draw around the bottom part (we call it her nest). She has far more privacy and personal space than my husband or I do. đ
All I can think of as I read this is pride and prejudice- Jane and Elizabeth sharing a BED until they left the house to get married. I think they turned out okay đ if its good enough for the Bennets!
Also I think we live in a world now where some people legitimately feel they can't have any more children based on the number of bedrooms they have in their home. I personally love the fact that upon buying a 10 bedroom house, Kendra and her husband didn't immediately jump to the "everyone gets their own room!" Conclusion
That might be a bit simplistic. I have never heard anyone say they couldn't have more children based I the number of bedrooms….health concerns, yes….finances, yes….unemployment, yes….but no, never the number if bedrooms. That would be silly. Should just say " I don't want any more kids." Nothing wrong with that.
We have five children and none have their own room. We have a boys room and a girls room. The girls are 17, 13, and 4. My boys are much closer in age but the girls together is fine. Truthfully they don't sleep well when one is missing. It's what you make of it, we don't make it a big deal. It's our family culture, cause we're Muniz's
This has definitely got me thinking differently about privacy for one's kids. Probably like most Americans I always just assumed kids needed their own rooms if one could afford a house big enough.We have four bedrooms with a child in each one. Thank you for helping me consider things in a different light.Now I'm eyeing one of those rooms for a sewing room!I think i may have a mutiny on my hands soon!
Are you going to get a beautiful bit of stained glass for the little chapel window? because that would be amazing!
I think I remember seeing something on Instagram that her first purchase for the house was exactly that!
Yes! It's a beautiful vintage window featuring St. Anne and the Blessed Virgin!
#9 on the plans! I just read through it all đ
Wow! Trying really hard not to be jealous! lol. I love it!
This may be the first time I've commented, but I really enjoy reading your blog and your posts on family and Catholic life. Love seeing the transformation of this house and can't wait to see the final product. I somehow missed out on the Fixer Upper show until a January Netflix binge; I just adore Chip and JoJo…and you have shiplap?!
Thanks! And yes, we do. I was so excited to find out it has a name. I'm still trying to decide what to do with it. It's a bold look. But I want to figure out how to keep it.
I think I said, "Whoa!" five times while reading this post. I'm so happy for you guys! Multiple people have told Chris and me that we look like Chip and Joanna from Fixer Upper so I think I'm going to have to look them up, ha!
You do look like Chip and Joanna! Also you should watch their show because they are amazing. đ
This is amazing. I think I was (pathetically) most excited about the washer/dryer in the bedroom idea. It would take all the work out of doing laundry. And the 2 dishwashers! And a chapel to boot! I can't wait to see the "after" photos!
And those two weird question marks were supposed to be a winking face… Thanks crazy phone!
A couple years ago we replaced the vinyl in 2 bathrooms of our 27 year old house with linoleum. I really love the way it looks. I couldn't find a vinyl I liked well enough (because, surprisingly all the ones I had liked in 1989 have been discontinued!)
We used a blue one in the downstairs bath, and a green one in the upstairs hall bath. The product was from "Marmoleum" and it is a real linoleum. I wanted a solid look, not little tiles or a "granite" pattern.
I'll be following your remodel with enthusiastic interest.
I love your take on the HGTV shows. I totally agree on all. I love Fixer Upper. Such an endearing, genuine couple. When you guys are done, you have to give tours . . . charge for tours, but give them nonetheless. đ
hahah Chip and Joanna are my favorite!! I am enthusiastically enjoying this remodel! Although I am sure the actual work is way less fun than reading about it.
Making the boys' bathroom so that two can go at once is sheer brilliance. I really like what y'all are doing with the upstairs, giving the kids bedrooms and dressing rooms-that sounds like a great way to simplify, organize, and reduce clutter! And I'm still totally obsessing over your school room. It's so magical!
The washer and dryer in each dressing room is brilliant. It will definitely make laundry easier.
Thanks for sharing, this is all very interesting.
Sigh. I love blueprints. My father designed houses, so I spent many childhood hours studying and dreaming and "drawing" my own. Thanks for sharing yours.
And I LOVE the idea of going through the dressing room to get to the bedrooms. Brilliant! I don't know how many times I've said "Littles are sleeping! Live without it!" (Whatever "it" may be, which is clearly the *only thing* standing between them and death at that time.)
So excited for you guys. We close on our 116 year old Victorian on the 10th and I have been trying to channel Joanna myself to decorate and remodel. Your new home is going to be such the dream house for your family! I love the mental image of them sleeping like puppies đ
That's so exciting! I'd love to see YOUR before and after photos.
Have you thought about getting just one commercial dishwasher? Takes way less time to do a load and you wouldn't lose the extra cabinet space. I only say this because we replaced ours, then really regretted not going commercial.
That's an interesting thought. I shall look into it!
The commercial dishwasher might be the way to go- (I was thinking that as well when you said 2)… or get one commercial and one "normal" The commercial ones are fast- like 15 min. you can have the first load washed and cleaned before all the food is put away- then run it again for the big stuff.
When you say commercial, are you talking about a "Hobart "? We had one of those in my girls coop in college, and it was great but you had to completely rinse dishes first. Or are commercial dishwashers different?
Love it! Love it all! Can't wait to see "after" photos! I will say, the school room is especially great, and that little book over the fireplace is just begging for a little Marian statue!
Congratulations!! Wonderful plans and I would only add, have you considered making the guest bath downstairs a full bath, as opposed to a half bath?
I think that would be more comfortable for guests. Also, should you or anyone in your family, ever have any medical issues that would make stairs difficult the downstairs full bath could be a life saver.
Thanks! There actually is a full bath downstairs, between the schoolroom and the play room, and we are planning to keep the guest bathroom with a shower, the way it is now (I think the plans say 1/2 bath, but it's actually 3/4) but we are going to make it accessible with a roll in shower, just in case we ever need it.
I agree with you in planning ahead for that sort of thing now, when we're already doing the work!
So exciting! Your home is going to be beautiful and lovely! We are in the process of looking for a home, and I feel as though nothing works for us as it is. How did you approach the ratio of how much the home costs to buy + reno costs? We have never renovated anything before and I have no idea what to do.
I also wondered your thoughts on buying a house your family can grow into; we have 2 small children and hopefully many more, so we want a house that we can grow into, but it feels a little silly buying a larger house right NOW because we don't need it right NOW (though we could have another baby at any time, and more and more etc); how did you guys approach that?
I'm not sure you can ever figure out exactly what it's going to cost to renovate a house. I made my best guesses, and we decided we could afford to by it and do at least the minimum renovations necessary for our family. But they ended up to be not very accurate guesses. đ
Still, we loved the house, and in FOUR MONTHS of looking, it was the only one we saw anywhere close to our price range that we loved and thought would work for us. So, we won't be able to do everything we'd like to do right away. But we're in it for the long term.
Oh, and when we moved in to our current house, we had three kids. I was designing the rooms with the help of a complimentary interior designer from the store where we were getting our furniture and I told her I wanted room for three kids in each bedroom. And that surprised her!
But I'm SO glad we did. Even if we hadn't been blessed with more kids, we've had room for cousins to visit. We are planning to have beds for twelve in the kids' room in the new place. Just in case. đ
I LOVE that you are planning ahead for more beds! I am on pins and needles to see more pictures. I LOVE floorplan design…hobby of mine, and especially homes that work for large families. I am totally drooling in anticipation!
Yeah! I've been checking back for a house update!! I like the en suite laundry for the kids. Although, hard to imagine since all I have is littles…. I'm headed to LA in the fall, my brother just bought a house in Chevoit Hills.
Lovely home! My husband is a builder and we have built our last two homes. We have a largish family (7 children) and homeschool. Most plans for large houses don't actually have large families living in them! I saw your plans and thought about them all morning. . .I wanted to call you (even though we have never met! ha!) and tell you my unasked for suggestions. I decided to comment box just a few. . . Since you are down to studs in certain areas.. .I would encourage you to install a central vac system. BEST THING EVER. in 20 plus years of different homes that have them, they have NEVER broken. They come with a lifetime guarantee. When all my friends are lamenting their vacuum decisions, I just knock off a few prayers of gratitude for our blessing. Also, 2 dishwashers is awesome! For some reason, I agonized over that decision and I love them. so much. We went for the cheaper 3 function ones since that is all we ever used anyhow. We went with much more space in our kitchen that the typical triangle and I am so grateful. It allows lots of cooks in the kitchen when we all want to work together. Enjoy the process!
That's an interesting suggestion. I'm not sure it it would be worth it, since there's no carpet in the house. I guess we'll have some rugs, though.
Oh, I second the central vac! When my parents built the cost was the same or less than a good vacuum (like a Miele). They have all hardwood. It's the healthiest & cleanest in terms of air pollution. Nothing, and it mean NOTHING you vacuum up is getting spewed back into the air! I am biased because I have dust and pollen allergies, but it's great! Look into it!
So I have to ask: are all of you living in the house while this is going on? And if you are, how on Earth do you deal with it? I think the noise alone would drive me bonkers!
We haven't moved in yet. The plan is to get the upstairs finished, and move in to those rooms while we work on the downstairs. We're hoping they get started on the kitchen soon, otherwise we're going to be grilling out a lot!
The house is going to be amazing! I LOVE how you have designed it to work for YOUR particular family. The seemingly little things, like the two dishwashers, and the laundry in all the bedrooms, are just fantastic. I'm so happy for you!
First of all, thanks for posting your before and after floor plans! That is so fun. I love obsessing over floor plans, I don't know why since I'm not buying a house but it's fun to vicariously experience it. đ
Yes Fixer Upper! My sister and I discovered them recently and we love that show!
This is amazing! We had a butler's pantry in the house I grew up in age 2-12. It looked remarkably similar to this one. Maybe you could keep some of the elements for the kitchen? You probably have tons of ideas already though. Color me impressed! Love that you have those eaves in your bedroom. And stained glass for the chapel? So perfect. You guys are over the top.
Your synopsis of the home improvement shows are spot on. Thank you for having the same opinions as me.
wow…it is really going to be beautiful. Congrats! it is important for other readers to realize that although Kendra seems to be a great mom and is clearly a devout Catholic, her lifestyle does not represent accurately what life is like for the average large or small family. Housekeepers, vacations and a large budget make things way easier…practicality….and sanity wise. I have felt compelled to comment for awhile….and its not a knock…..just….her struggles aren't like the struggles of others…..finances mean a lot. that is all . It is a really great house and the kids are lovely.
So true! Not many large Catholic families are buying a million+ dollar home and then renovating it like crazy! It's definitely awesome to make it functional for a large family!
This. Is. Awesome. All of it. I have always vowed to eventually move to the "sleeping porch" plan where there are rooms for sleeping and rooms for getting dressed, studying, etc. The next baby will probably tip the scales for us, and I'm THRILLED to see you paving the way! (P.S. What a GORGEOUS home … I would be one of the schmucks signing my family up for a tour, just sayin')
I sincerely thank you for sharing the before and after plans! I pored over this post and am over-giddy with excitement for you. đ You seem to have an incredibly creative and talented architect. I am not sure what is my favorite detail- your bedroom ceiling, the chapel with stained glass, the urinal in the boys' bathroom!!! It takes guts to be vulnerable and allow strangers to view something so personal. Kudos to you for your polite replies to the negative comments.
I am intrigued by the all natural linoleum. Could you point me to their website?
Can't wait to see the after pics!
Thanks Amy! People and even places like Home Depot, use "vinyl" and "linoleum" interchangeably, but they are quite different. Vinyl is a petroleum product, while ALL linoleum is made of a linseed oil composite with a natural jute backing. It's even naturally antiseptic, apparently. So any linoleum you find should be all natural. But some of the brand names I've seen are Marmoleum, Forbo, and Johnsonite.
Yay Kendra!!!
Thanks for sharing your plans!! Everything looks amazing, and I can't wait to see the final details!! What a blessing for your family!
~Kandace
Ok, you lost me at "urinal." Ewwww. I think urinals are about the grossest invention ever! But otherwise, the plans seem wonderful, particularly the chapel.
LOVE fixer-upper. Makes me actually want to move to Texas, and I am a Northeast kind of a girl.
My husbands dream home would contain a Urinal, lol!
Smoothest and most relevant sponsored post ever â nicely done!! I always feel a little let down when I read a sponsored post unless it is a really cool ( and relevant ) Etsy Catholic, etc. – but this one totally didn't do that to me because it was exactly what we've been wanting to read on your blog and lots of personal content that didn't break with the normal flow. Vision for the house = incredible! Have fun!!
I just love the idea of big ol shared rooms with separate dressing rooms and bathrooms for the boys and girls. SO practical! And I think shared rooms are good for character. đ
Thanks for sharing – love it! I was concerned about the little 1st floor laundry working for you until I saw the others. You have my sympathy on decision overload – been there! Hopefully you are spending as much time at Houzz.com as at Netflix, but I realize you aren't sponsored by Houzz. đ
We have two dishwashers and upstairs laundry room in the home we just built/have been living in for less than a year! And I am SO excited for you to have these things, too! They really could not be more practical and luxurious at the same time!
I just re-read this after your moving post, and it only made me so much more excited for your family! I only have one sister so I can't really imagine living in a family the size of yours, but it seriously seems so fun. The house is beautiful and I'm glad you're renovating it to make it your own. So many people would kncixn it down and start from scratch.
Knock it down*
I am just in aweâŚof God mostly. How He has smiled upon your family. You are one of the most straightforward defenders of the Faith, but you also have the joy of family life and the liturgical year. I don't like to say that anyone 'deserves' anything in this lifeâŚbut I am glad that if somebody gets a mansion with a chapel and two dishwashers and suites for boys & girls, you are at the *top of the list of people who could be a good steward of it. You are firmly planted, and I think with all the excitement in this season, you have a heart that is still detached and set on our eternal home. No jealousy here, just happy to see someone handling this vocation with such grace. (okay, mostly honestâŚI am jealous of your chapelâŚsigh;)
Your recent photo updates on instagram inspired me to come back to this original post. One of the things my husband and I thought about when we were looking at houses was aging-in-place and how stairs can become inconvenient. We're in our late 20s but who knows what the future holds? I think the idea of keeping at least one bedroom (although, you could likely turn the play and homeschool rooms back into bedrooms) downstairs will be great for you and your husband in 30+ years in case mobility and stairs become a problem.
Like many others, I'm eager to see the all the progress and finished rooms. If you don't mind me asking, do you have a renovation timeframe? I think your tastes are elegant and your home is so beautiful.
Yes, that's a good thing to keep in mind, for us eventually, but we are also hoping to talk some grandparents into living with us full time someday. We'll have the guest room downstairs, plus the playroom and schoolrooms are still available if needed.
We don't really have a timeframe. I'm hoping to get all the painting done upstairs by the end of the summer, but I probably don't have a good understanding of all that's going to go into it. I want to strip the door jambs and hardware and all sorts of other stuff I really have no business doing. đ Then, once we are settled upstairs, we'll start work downstairs. Or maybe we'll wait a year, I don't know for sure!